stabilized bromine sensor

stabilized bromine sensor
Walchem's Stabilized Bromine Sensors offer a cost-effective and reliable solution to your control requirements. The sensors continuously and directly measure the chemical concentration, without the use of reagents. Where ORP sensors and other amperometric sensors cannot reliably and repeatably measure bromine that is stabilized with sulfamate, this sensor can!
Walchem's Stabilized Bromine Sensor Key Benefits:
- LOW MAINTENANCE - No costly reagents or tubing to replace
- FAST RESPONSE - Continuous measurement technique
- NO WASTE - Sample can be returned to the process under pressure
Walchem's Stabilized Bromine Sensor Specifications:
stabilized bromine sensor specifications

stabilized bromine sensor specifications
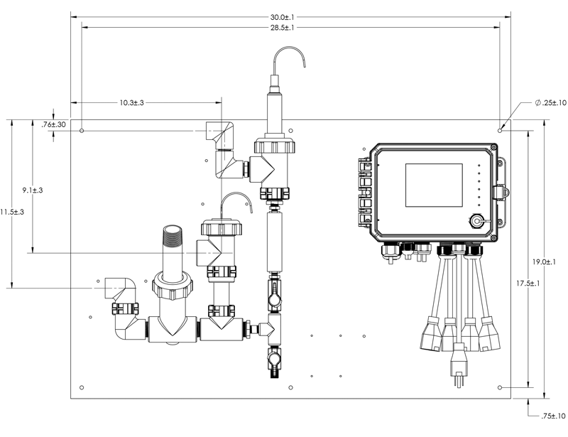
Walchem's Stabilized Bromine Sensor Diagram:
stabilized bromine sensor diagram

stabilized bromine sensor diagram
Download Walchem Stabilized Bromine Sensor Brochure
Call us today at (855) 737-4714 to learn more, or fill out our online form and someone will get back to you.