The Type 700 is designed for applications that require high flow capacity and accurate process control. A poppet valve which is balanced by utilizing a rolling diaphragm insures a constant output pressure even during wide supply pressure variations. Stability of regulated pressure is maintained under varying flow conditions through the use of an aspirator tube which adjusts the air supply in accordance with the flow velocity.
Features
Type 700 Precision Air Pressure Regulator Features
- 1/4”, 3/8”, 1/2” NPT/BSP Porting
- High Flow Capacity: Allows flows up to 80 scfm (2,264 Nl/min)
- Sensitive: Senses output pressure deviations to within 1/8 inch water column pressure
- Stable Output: Dampening action of aspirator tube makes this regulator insensitive to changes in flow
- On-line Maintenance: Can be serviced without removal from the air line
Specifications
Type 700 Precision Air Pressure Regulator Specifications
- Port Size: 1/2" BSP, 1/2" NPT, 1/4" BSP, 1/4" NPT, 3/8" BSP, 3/8" NPT
- Output Range: 0-100 psig (0-7 bar), 0-15 psig (0-1.0 bar), 0-150 psig (0-10.3 bar), 0-2 psig (0-0.15 bar), 0-30 psig (0-2.1 bar), 0-60 psig (0-4 bar)
- Flow Capacity: 80 scfm (2,264 Nl/min)
- Exhaust Capacity: 4 scfm (120 NL/min)
- Sensitivity: 1/8" in. (3.2 mm)
- Max. Supply Pressure: 250 psig (17 bar)
- Supply Pressure Sensitivity: Less than 0.1 psig for a 100 psig change (0.007 bar for a 6.7 bar change)
- Air Consumption: Less than 12.0 scfh (340 Nl/hr)
- Ambient Temperature Limits: -40° to +160°F '(-40° to 71°C)
- Weight: 1.625 lbs (0.74 kg)
- Mounting: Pipe, Panel, Bracket
- Body Material: Diecast Aluminum Alloy
- Other Material: Stainless steel, Brass, Plated Steel Acetal, Buna-N, Polyester, Phenolic Plastic
Dimensions
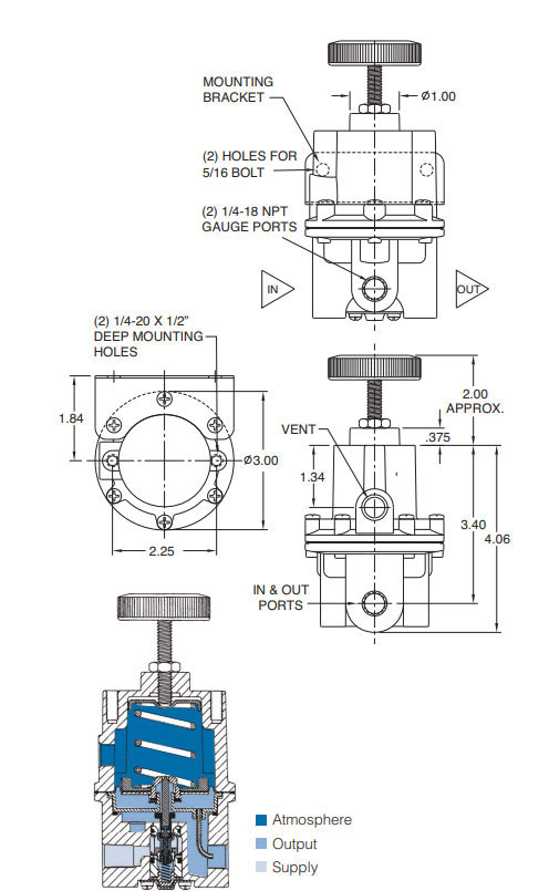
Type 700 Precision Air Pressure Regulator Dimensions

Q & A
Type 700 Precision Air Pressure Regulator Q & A
+ What is the flow capacity and pressure range of the Type 700 regulator?
The ControlAir Type 700 delivers up to 80 scfm (2,264 Nl/min) of air flow with a maximum supply pressure of 250 psig (17 bar). Output pressure ranges from 0–2 psig to 0–150 psig, providing accurate, stable control for high-flow pneumatic systems.
+ What materials and port options are available for the Type 700?
The Type 700 features a die-cast aluminum body with stainless steel, brass, and Buna-N components for durability. It offers NPT and BSP porting options for compatibility with U.S. and international installations and can be pipe, panel, or bracket mounted.
+ How does the Type 700 maintain pressure stability under changing conditions?
Equipped with a balanced poppet valve, rolling diaphragm, and aspirator tube, the Type 700 delivers precise regulation even when supply pressure or flow rates fluctuate. It maintains stable output with less than 0.1 psig change for every 100 psig supply variation, ensuring consistent downstream performance.
+ What options and accessories are available for the Type 700?
Optional features include check valves, tapped exhausts, high- or low-bleed designs, stainless steel components, tamper-proof covers, and non-relieving models. These options let you tailor the regulator for specific environments, from cleanrooms to high-demand industrial systems.
+ What industries and applications use the Type 700 regulator?
The Type 700 is ideal for oil and gas, food and beverage, water treatment, and industrial automation applications. Its high flow capacity, precision output, and global compatibility make it a trusted choice for maintaining stable air pressure in demanding pneumatic systems.
Downloads
Download ControlAir Type 700 Precision Air Pressure Regulator Datasheet
Call us today at (855) 737-4714 to learn more, or fill out our online form and someone will get back to you.